- Главная
- ??????? ??? ???????
- Административное здание "Запад"
Административное здание "Запад"
X-1855-0
1 / 2
Описание проекта
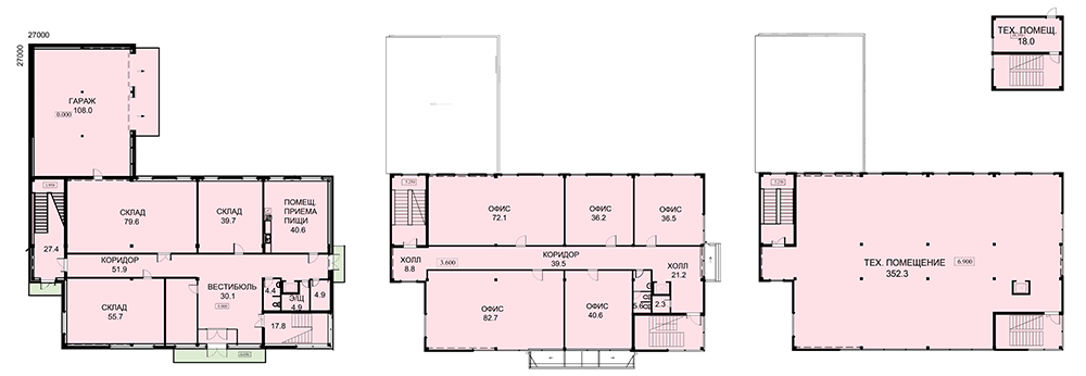
Административно-бытовой корпус представляет собой двухэтажное прямоугольное в плане здание с техническим верхним этажом. К двухэтажному прямоугольному объему со стороны двора примыкает одноэтажный гараж. Главный вход выделен витражным остеклением и большим консольным навесом. Корпус имеет дополнительный служебный вход с бокового фасада. Планировочная схема – коридорная система с лестницами по торцам здания. Лестницы – эвакуационные 1 типа. Лестница между осями 5-6 имеет служебный выход на кровлю. На первом этаже размещаются вестибюль, офисные помещения, помещение приема пищи для персонала, склады инструментов и запчастей, санузлы, технические помещения. На втором этаже располагаются офисные помещения, санузлы персонала. Технический верхний этаж предназначен для размещения труб отопления (верхняя разводка) и венткамер. Гараж предназначен для размещения двух автомашин типа «Газель».
Планировки
Фасады

