- Главная
- ??????? ??? ???????
- Магазин "Cевер"
Магазин "Cевер"
X-1858-0
1 / 2
Описание проекта
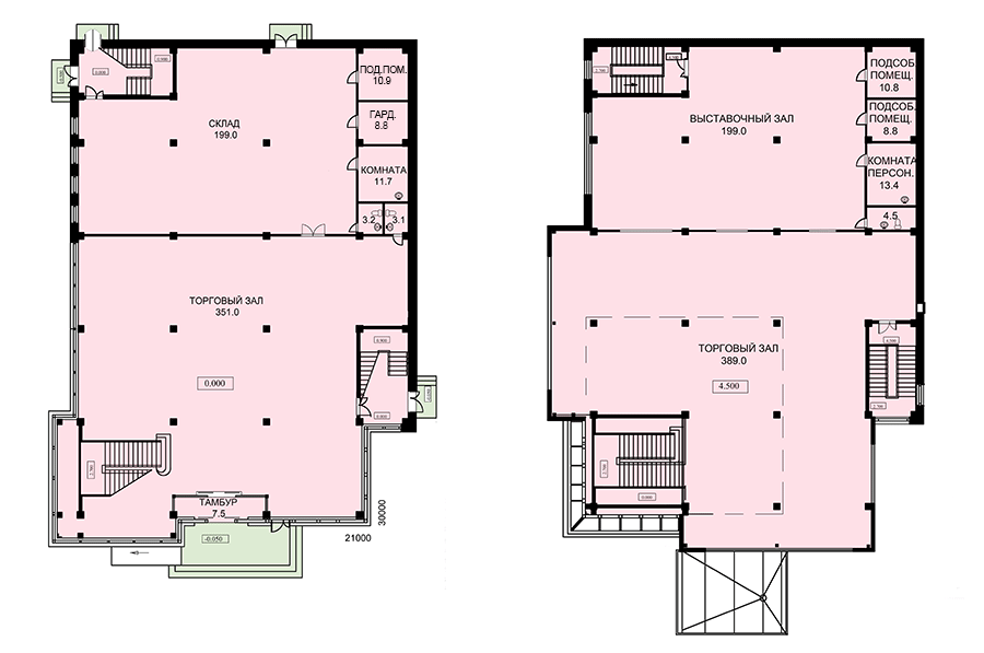
Магазин представляет собой двухэтажное здание. Большой козырек - навес ведет от парковки в торговый зал первого этажа. На первом этаже расположены торговый зал и складская зона. На втором этаже –торговый и выставочные залы. Торговые залы первого и второго этажей соединены открытой парадной лестницей. Зал второго этажа имеет верхний свет через фонарь на кровле. Кроме того, в салоне находятся офисные помещения, санузлы, гардероб персонала, технические и подсобные помещения. В здании имеется две эвакуационные лестничные клетки типа.
Планировки
Фасады

