- Главная
- Проекты домов
- Дом с остекленной террасой
Дом с остекленной террасой
C-1370-0
1 / 2
Описание проекта
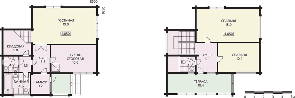
Небольшой, но достаточно вместительный дом из бревна с асимметричной кровлей. Площадь, планировка и оборудование дома позволят эксплуатировать его не только как сезонное, но и как постоянное жилье для немногочисленной семьи. В доме два этажа и чердак над частью помещений, подвал отсутствует. Помещения второго этажа частично мансардные, частично полноценные по высоте с высотой в свете 2.6 м. На первом этаже расположены гостиная, кухня-столовая, кладовая и санитарный блок. Вход в дом предваряет небольшой тамбур со встроенными шкафами. Выделенного помещения под котельную в доме не предусмотрено, но на кухне есть место для установки котла. Гостиная оборудована камином. На втором этаже расположены две спальни и санузел. Остекленная терраса также может использоваться в летнее года время как жилое помещение. Чердак по проекту не эксплуатируется.
