- Главная
- Проекты домов
- Коттедж для большой семьи
Коттедж для большой семьи
D-0195-0
1 / 2
Описание проекта
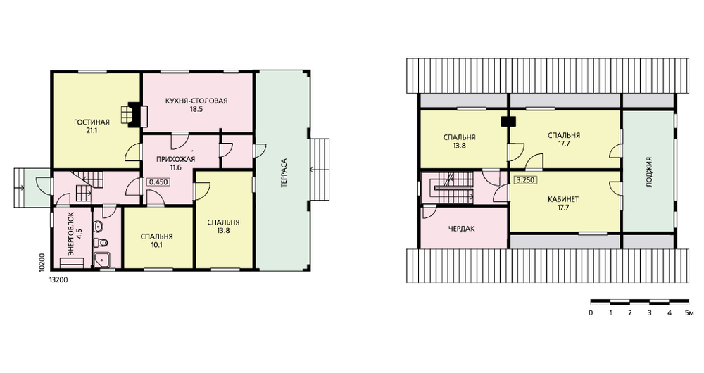
Одноэтажный дом с мансардой и техническим подполом может использоваться как для постоянного, так и для сезонного проживания многочисленной семьи, состоящей из нескольких поколений. Отсутствие подвала и конструктивное решение основания дает возможность возводить этот дом на участках с высоким уровнем грунтовых вод и на любых грунтах. Стены из калиброванных бревен, дощатые полы и потолки, утеплитель из сухого мха и войлока определяют дом как образец экологически чистого жилища. В нем легко дышится, не требуется больших расходов на косметические ремонты. Планировка дома проста и экономична.
Планировки
Фасады

