- Главная
- Проекты домов
- Трехуровневый коттедж из бруса
Трехуровневый коттедж из бруса
E-0199-0
1 / 2
Описание проекта
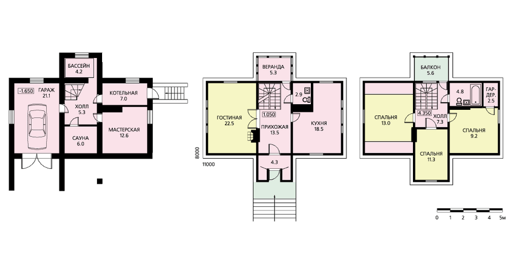
Двухэтажный деревянный жилой дом с верандой более всего подходит для строительства на участках 0.6–0.12 га. Исходя из площади самого дома, числа и назначения запроектированных помещений, его вполне можно рекомендовать для постоянного проживания небольшой семьи. В строительстве дом достаточно прост и экономичен. В составе проекта максимально использованы стандартные элементы. На рисунке приведен вариант размещения этого дома на ровном участке. Но если рельеф участка хорошо выражен, дом можно расположить гаражом к подножию холма, освободив его от внешней подпорной стенки.
Планировки
Фасады

