- Главная
- Проекты домов
- Каменно-блочный коттедж
Каменно-блочный коттедж
E-0524-0
1 / 4
Описание проекта
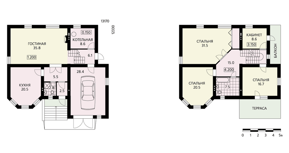
Обратите внимание на этот экономичный и очень выразительный дом. Высокие скаты крыши, многогранный эркер – все это делает его запоминающимся и необычайно привлекательным, а планировка проста и предельно рациональна. Встроенный гараж связан с помещением первого этажа. Небольшая прихожая, кухня, гостиная, вспомогательные помещения – все очень компактно вписано в первый этаж. Зону кухни можно выделить на площади гостиной, а освободившуюся комнату оборудовать как кабинет или спальню. Второй этаж предназначен для отдыха и сна. Приятным для владельцев будет и то, что мансардное пространство также можно использовать, как потребуется семье.
Планировки
Фасады

