- Главная
- Проекты домов
- Бревенчатый дом с эркером
Бревенчатый дом с эркером
E-1318-0
1 / 2
Описание проекта
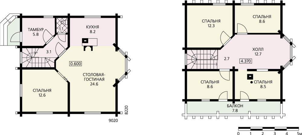
Небольшой бревенчатый дом, строгую геометрию плана которого нарушает красивый трехгранный эркер. На первом этаже в нем оборудована столовая, в мансарде он является частью холла. Да и вся внутренняя планировка дома как бы поддерживает форму его плана. На первом этаже ему отвечают скошенные углы в спальне и коридоре, на мансардном – в спальне. Один этаж и мансарда – это все этажи, предусмотренные проектом. На первом половину всей площади занимает единое пространство гостиной, кухни, столовой. Камин условно отделяет кухню от остального пространства. На второй половине этажа запроектированы тамбур, лестница с небольшим коридором, санузел и спальня. Мансарда отведена под спальные помещения. В центре находится просторный холл с уже упомянутым эркером. Из двух спален можно выйти на балкон, протяженный на всю ширину дома. Это незамысловатый, но очень симпатичный дом, качественная отделка, которого может сделать его еще более привлекательным.
