- Главная
- Проекты домов
- Дом для отдыха с бассейном
Дом для отдыха с бассейном
E-1425-0
1 / 3
Описание проекта
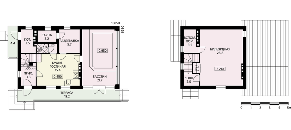
Великолепный дом для отдыха – небольшой, уютный, комфортабельный и внешне очень привлекательный. Дома такого назначения становятся все более популярны. Они могут быть самостоятельными постройками, а могут возводиться в большой усадьбе в дополнение к основному жилому дому. Проектом предусмотрен один этаж и мансарда. На первом этаже центральное место занимает гостиная, совмещенная с кухней. Она решена как транзитная зона, из нее можно попасть в сауну, в бассейн и по расположенной здесь – же лестнице подняться на мансарду. Здесь же можно отдохнуть после сеанса в сауне или «заплыва» в бассейне. Особое внимание хочется обратить на помещение бассейна, оно решено с большими остекленными витражами и выходом на террасу. Мансарда может использоваться по усмотрению хозяев дома. По проекту здесь размещена бильярдная, но вполне возможно использовать это пространство для размещения спальных помещений.
Планировки
Фасады

