- Главная
- Проекты домов
- Деревянный коттедж с пристройками
Деревянный коттедж с пристройками
E-1520-0
1 / 3
Описание проекта
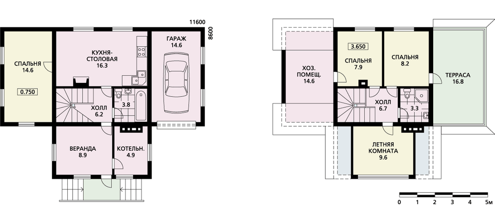
Уютный коттедж, который характеризуют высокая функциональность и экономичность в планировке и архитектурных решениях, а также небольшое пятно застройки, что позволяет значительно снизить стоимость дома при строительстве. Коттедж запроектирован с двумя жилыми этажами, один из которых мансардный. На первом этаже расположена котельная, объединенные кухня и столовая, санузел и внутренняя лестница, а также гараж в пристройке, симметрично которой находится пристройка с гостевой спальней. В мансардном этаже расположены две зимние спальни и санузел, а над пристройками - большой балкон, выход на который осуществляется из одной из спален и хоз.помещение. Также из холла можно попасть в летнюю комнату, расположенную над верандой.
Планировки
Фасады

