- Главная
- Проекты домов
- Кирпичный коттедж с мансардой
Кирпичный коттедж с мансардой
F-0541-1
1 / 2
Описание проекта
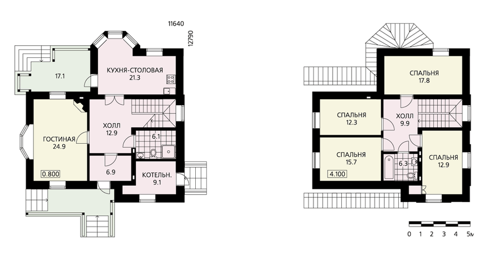
Проект компактного, но в то же время вместительного загородного дома. Удачное соотношение жилой и общей площадей, пять жилых комнат позволят поселиться здесь многочисленной семье. В доме два жилых этажа, один из которых – мансардный, чердак и техническое подполье для прокладки коммуникаций. Первый этаж – зона дневного пребывания семьи с гостиной и кухней-столовой. Особенно интересна планировка кухни-столовой, с красивым остекленным эркером и выходом на террасу. Во внешнем облике дома большую роль играет кровля, ее площадь превалирует на фасадах, поэтому так важно подобрать красивое и качественное кровельное покрытие. Не будут лишними и мансардные окна, которые помогут осветить и дополнительно вентилировать спальни мансарды.
Планировки
Фасады

