- Главная
- Проекты домов
- Классический дом с двускатной кровлей
Классический дом с двускатной кровлей
F-3025-0
Описание проекта
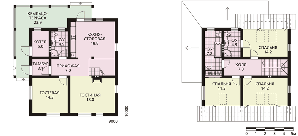
Унификация проектных решений при массовом строительстве коттеджных поселков и сельских поселений нередко приводит к неблаговидному облику застройки – монотонности. Да и при выборе дома для индивидуального строительства нередки случаи, когда удовлетворяет только что-то одно – эстетика фасадов или планировочное решение.
Представленный проект эффектно разрешает эти проблемы. Два варианта крыши дома с единым конструктивным решением не только в корне отличают постройки друг от друга, но и предоставляют выбор жилья разной площади. Несложный в плане и недорогой в строительстве дом вполне соответствует задачам, предъявляемым к домам для постоянного проживания. В зависимости от формы крыши – вальмовой и двускатной – общая площадь дома изменяется в пределах от 140,5 кв. м до 109,4 кв. м. В своем основном варианте (общая площадь 129,9 кв. м) дом идеально соответствует потребностям семьи из 4–5 человек.
Наружная отделка на основе вентилируемого фасада позволяет применять как окрашенную штукатурку, так и иные материалы – сайдинг, панели с мраморной крошкой, керамогранит, – стилизуя дом так, как того могут требовать регламенты застройки.
Планировки
Фасады

