
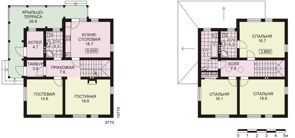
При выборе дома для индивидуального строительства нередки случаи, когда удовлетворяет только что-то одно – эстетика фасадов и облик дома в окружающей застройке или планировочное решение и полезная площадь дома. Данный проект способен эффектно разрешить это противоречие. Два варианта крыши дома с единым конструктивным решением не только в корне отличают постройки друг от друга, но и предоставляют выбор жилья разной площади.
Несложный в плане и недорогой в строительстве дом вполне соответствует задачам, предъявляемым к домам для постоянного проживания. В зависимости от формы крыши – вальмовой, двускатной и многоуровневой односкатной – общая площадь дома изменяется в широких пределах. В своем основном варианте (общая площадь 140,5 кв. м) дом идеально соответствует потребностям семьи из 5–6 человек. Вариант с двускатной крышей несколько меньше по площади за счет скатных потолков мансарды (129,9 кв. м). Разработан также и маленький дом с односкатной крышей (109,4 кв. м).
