
Привлекательный коттедж в светлом кирпиче – аналог популярного проекта коллекции LANS DEVELOPMENT I-3025-1. Между собой они различаются только материалом наружной отделки. В нашем случае это облицовочный кирпич, светлый тон которого делает дом уютным и внешне.
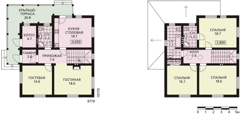
Внутренняя планировка отвечает принципам рациональности: первый этаж – зона дневного пребывания хозяев и гостей, второй этаж – приватный, на котором расположены три просторные спальни и два санузла. Несложный в плане и недорогой в строительстве коттедж вполне соответствует задачам, предъявляемым к домам для постоянного проживания. В данном варианте он идеально отвечает потребностям семьи из 5–6 человек.
