- Главная
- Проекты домов
- Кирпичный коттедж с бассейном
Кирпичный коттедж с бассейном
H-1009-0
1 / 2
Описание проекта
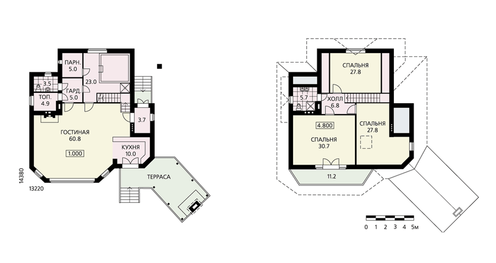
Авторам этого проекта нельзя отказать в фантазии и тонком вкусе. Непростой, но очень красивый профиль кровли, использование элементов декоративного фахверка, необычно решенная терраса создают очень выразительный образ этого дома. Такая постройка будет выделяться в любой архитектурной среде своей незаурядностью. Изюминкой архитектурного решения, безусловно, является крытая терраса для барбекю, примыкающая к углу здания. Ее смежное расположение с кухней и наличие камина-жаровни делают возможным проведение здесь веселых семейных праздников. Внутренняя планировка дома также достаточно своеобразна. Практически всю площадь первого этажа занимает огромная шестидесятиметровая гостиная, объединенная с кухней и столовой в единое помещение. Смежно с ней расположена зона релаксации с бассейном, сауной и душевой. Традиционно решен, пожалуй, лишь мансардный этаж с тремя спальнями и ванной комнатой.
