- Главная
- Проекты домов
- Кирпичный коттедж c двумя гаражами
Кирпичный коттедж c двумя гаражами
I-0755-0
1 / 2
Описание проекта
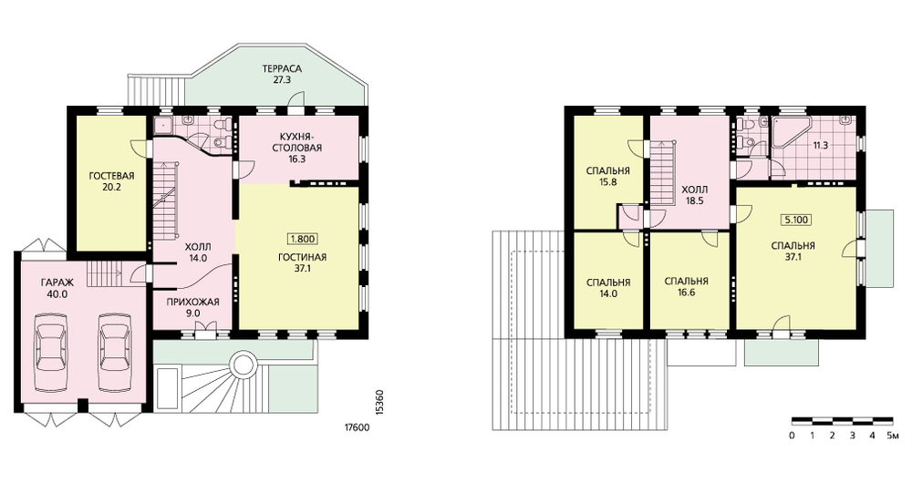
Кирпичный коттедж выполнен в лучших традициях загородного домостроения. Дом состоит из двух объемов: большого жилого и маленького, в котором расположен гараж. Особенностью планировки гаража является возможность заезда в него с двух противоположных сторон. Основной объем имеет один жилой этаж и мансарду. В доме отсутствует заглубленный, цокольный этаж, это заметно удешевляет его строительство. Все помещения первого этажа группируются вокруг холла-прихожей. Гостиная и кухня-столовая образуют единое пространство с выходом на большую открытую террасу. Гостевая комната, расположенная здесь же, может служить кабинетом или спальней старших членов семьи. В мансарде предлагается оборудовать четыре спальни, самая большая из которых имеет двустороннее освещение и два балкона.
