- Главная
- Проекты домов
- Четырехуровневый особняк
Четырехуровневый особняк
I-1113-0
1 / 2
Описание проекта
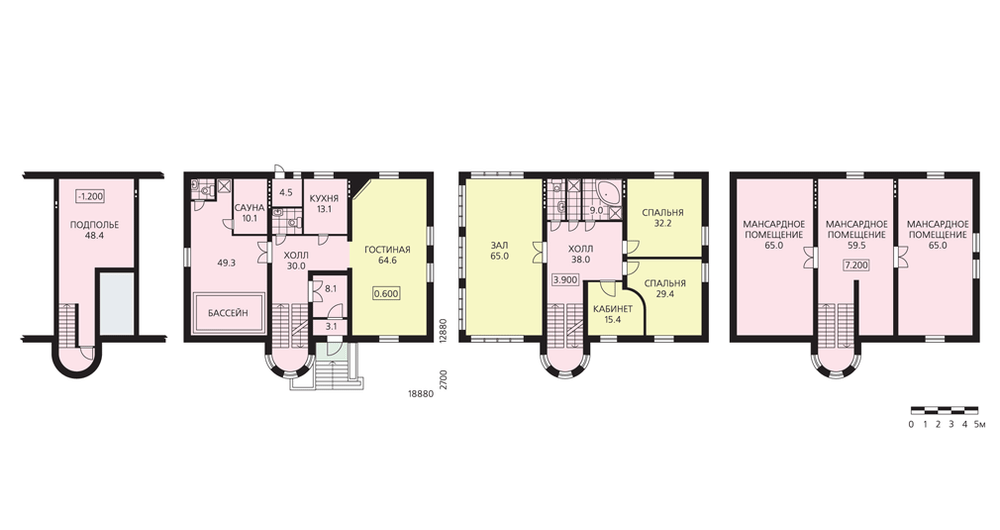
Просторный кирпичный двухэтажный особняк с мансардой и техническим подпольем. По своему объемно-планировочному решению он достаточно прост, изюминкой, формирующей весь облик и придающей неповторимость, является полукруглая башня-эркер с шатровой кровлей. Она расположена на главном фасаде, внутри нее спрятана лестница. Первый этаж имеет четкое трехпролетное членение. В одном из пролетов расположена зона релаксации с бассейном и сауной, в другом – входной блок с холлом и лестницей, третий пролет целиком занят гостиной. Это огромное 64-метровое помещение предоставляет неограниченный простор творческой фантазии дизайнера. Второй этаж повторяет планировочную структуру первого, по обе стороны от центрального холла расположены жилые помещения. С одной стороны это спальни и кабинет, с другой – просторный, светлый зал, который может служить второй гостиной или зимним садом.
