- Главная
- Проекты домов
- Современный уютный дом
Современный уютный дом
V-1434-0
Описание проекта
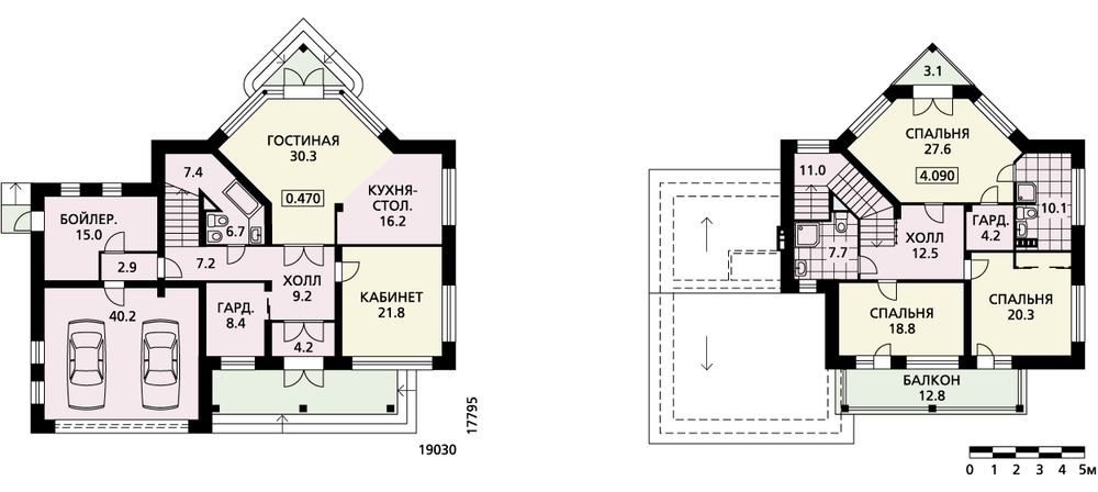
Современный, относительно небольшой, уютный дом. Его архитектурная концепция не привязана к конкретному стилю, и он легко впишется в естественную природную среду. Жилой дом представляет собой одноэтажное здание с мансардой, к которому пристроены гараж и бойлерная. Они удобно связаны с жилыми помещениями первого этажа, главную роль среди которых играет гостиная. Это изящно решенное помещение с большими площадями остекления и выходом на уютную, симпатичную террасу. В одном объеме с гостиной расположена кухня-столовая. К жилым помещениям первого этажа также относится кабинет, или гостевая спальня – в зависимости от пожелания хозяев дома. Все помещения сгруппированы вокруг небольшого входного холла. Мансарда представляет собой интимную часть дома. Большая спальня хозяев сблокирована с просторной светлой ванной и гардеробной. Две детские спальни имеют большой общий балкон, и для них предусмотрена ванная комната.
Планировки
Фасады

