- Главная
- Проекты домов
- Вита - функциональность и стиль
Вита - функциональность и стиль
X-1557-0
1 / 3
Описание проекта
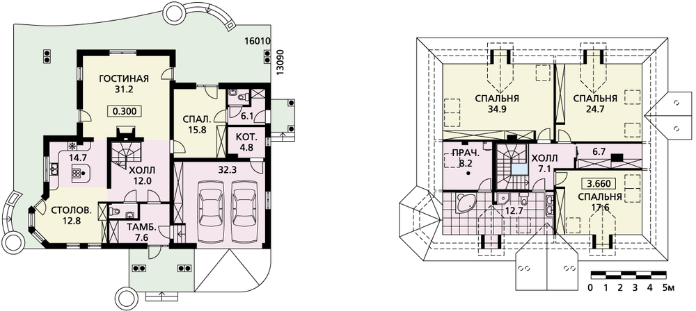
Стильный европейский дом с жилой мансардой, с гаражом на два автомобиля, без подвала, предназначен для семьи из 4-6 человек. На первом этаже находится дневная зона - большая гостиная, просторная кухня с отдельной столовой и санузел. В здании запланирован кабинет или гостевая спальня с отдельным входом снаружи. Спальная зона в мансарде вмещает три спальни, гардеробную, ванную и прачечную. Этот дом особенно хорошо утеплен в связи со строгими европейскими правилами, за счет чего является энергосберегающим и впоследствии помогает экономить на отоплении. При покупке этого проекта предоставляется комплект чертежей инженерных систем, созданных по европейским нормам, для ознакомления.
Планировки
Фасады

